VRoom - EPV4RBR - Centrale de traitement de l'air

EPV4GBR

Dispositifs de contrôle pour unités de traitement de l'air à flux unique ou double avec fonctionnement saisonnier (à 1 batterie) et annuel (à 2 batteries)

Version: LCD intégré en 128x64 pixels

Alimentation: 24 VAC/CC non isolé 

Entrées sondes: 4

Entrée 1/0: 2

Sorties numériques: 5A 

NOTICE VRoom - EPV4RBR

Description

Vroom est une gamme d'interfaces utilisateur à distance pour des dispositifs de contrôle programmables appartenant à la série c-pro 3.
L'interface utilisateur est constituée par un afficheur graphique à cristaux liquides, par six touches ; elle peut être réalisée avec l'environnement de développement pour dispositifs de contrôle programmables UNI-PRO 3 et elle garantit un degré de protection IP40 (IP65 en cas d'installation sur panneau avec le joint 0027000007), pour faciliter le nettoyage.
Elles contiennent un capteur de température et d'humidité (dont le relevé peut être transmis par BUS).
Les interfaces utilisateur à distance sont facilement intégrables aux milieux résidentiels et commerciaux ; on peut appliquer sur leur panneau frontal les plaques CPVP ou les plaques appartenant à la série “Living” et à la série “Light” BTicino.
On a prévu une installation sur panneau ou murale “506e” BTicino ou avec un support pour l'installation murale CPVW00).

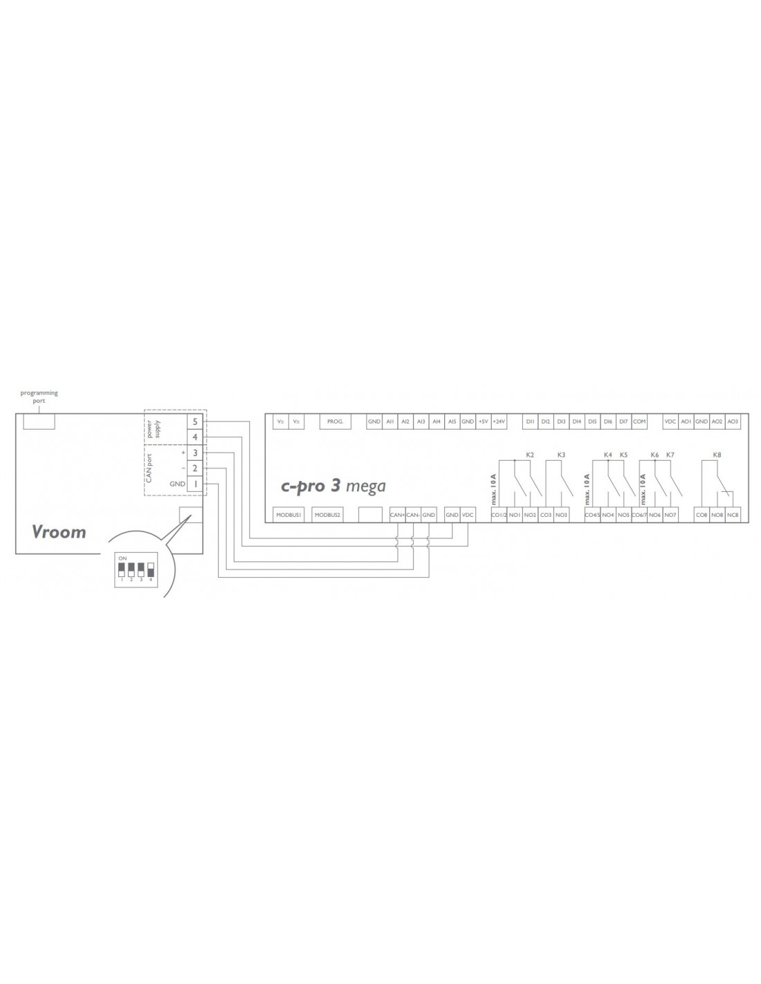
Configuration de l'E/S

Le dessin suivant illustre un exemple de configuration prête pour l'utilisation destinée à une unité de traitement de l'air à double flux avec fonctionnement annuel (à 2 batteries, réversible à eau et de réchauffage électrique), et avec un ventilateur de reprise et de refoulement modulant ; on peut personnaliser la configuration de l'E/S.

c-pro 3 micro AHU c-pro 3 kilo AHU Vroom
Sorties analogiques
AO1 vanne mélangeuse batterie réversible (à eau)  
AO2 ventilateur de refoulement  
AO3 ventilateur de reprise  
AO4... AO6 non utilisées X X  
Sorties numériques (relais électromécaniques)
DO1 activation ventilateur de refoulement  
DO2 vanne externe  
DO3 activation ventilateur de reprise  
DO4 vanne de by-pass  
DO5 batterie de réchauffage (électrique)  
DO6... DO9 non utilisées X X  
Entrées analogiques
AI1 température de refoulement  
AI2 température externe  
AI3... AI9 non utilisés X X  
AI1... AI2 non utilisés     X
Entrées numériques
DI1 protection thermique ventilateur de refoulement  
DI2 fin de course vanne externe  
DI3 protection thermique ventilateur de reprise  
DI4 protection antigel  
DI5 protection thermique batterie de réchauffage (électrique)  
DI6 pressostat différentiel  
DI7... DI9 non utilisés X X  

Détails du produit

Alimentation
24 VAC/DC non isolé
Entrée sonde - N°1
Entrée Analogique (NTC/Pt 1000/0-20mA/4-20mA/0-5V/ratiométriques)
Entrée sonde - N°2
4) Entrée Analogique (NTC/Pt 1000/0-20mA/4-20mA/0-5V/ratiométriques)
Entrée sonde - N°3
sonde de la température d'évaporation (NTC/Pt1000)
Entrée sonde - N°4
sonde de la pression d'évaporation (0-20mA/4-20mA/0-5V/ratiométriques/0-10V)
Entrée numérique (on/off) - N°1
3) Configurable
Entrée numérique (on/off) - N°2
Configurable
Sortie relais - N°1
charge 2 (défaut ventilateur de l'évaporateur)
Port de communication
CAN CANBUS
Port série TTL Modbus
TTL MODBUS pour clé de programmation EVKEY et pour d'autres produits EVCO.
Autres caractéristiques : N°1
gestion adaptative du dégivrage
Version
LCD intégré (écran graphique LCD monochrome 128 x 64 pixels)
Horloge
Oui
Vibreur sonore d'alarme
Oui

Documents joints

Reviews

No reviews
Product added to wishlist
Product added to compare.

Ce site utilise des cookies pour vous fournir le meilleur service possible. Si vous continuez à naviguer, vous acceptez l'utilisation de cookies.

Politique de confidentialité