EVJ 200 (EVJumbo) est une gamme de dispositifs de contrôle pour armoires et vitrines réfrigérées avec afficheurs lumineux de grandes dimensions et aux lignes modernes, icônes de fonction et 6 touches. Les deux versions, compacte ou splittée, sont disponibles également au format « open-frame » avec clavier à membrane.
Conçue pour une installation rapide sur panneau, la famille Jumbo dispose d'un clavier tactile de type capacitif et d'un panneau frontal IP65 entièrement lisse qui en facilite le nettoyage. Les modèles « naked », quant à eux, sont personnalisables depuis la machine grâce à l'installation à l'arrière du panneau.
Dotés de 5 relais au maximum pour une gestion complète des armoires et vitrines réfrigérées, les dispositifs de contrôle abritent un micrologiciel avec des fonctions intelligentes pour l'économie d'énergie. Certains modèles, sur demande, sont fournis dans la version conforme à la norme EN 60079-15 pour les installations qui utilisent des hydrocarbures (R290).
Pour les fonctions avancées relatives à la traçabilité des données HACCP, il est possible d'ajouter en option un module d'enregistrement des données sur carte SD (EVBD05) avec la génération de fichiers au format CSV ou une interface Bluetooth BLE (EVlink) avec visualisation des données et accès à la machine depuis des dispositifs mobiles. L'Horloge et le Bluetooth sont disponibles également dans la version intégrée.
Grâce à l'APPLI EVconnect (compatible avec les dispositifs Android), les smartphones et les tablettes deviennent ainsi un outil pratique sur lequel visualiser les graphiques et les alarmes en temps réel et télécharger l'historique des données, avec la possibilité de transfert via e-mail. En saisissant un code d'accès, il sera également possible d'intervenir sur la configuration de l'unité réfrigérée, en rendant ainsi EVconnect un outil moderne et indispensable pour un service qualifié.
EVJ213N2 - Vitrines réfrigérées d'exposition
                    
                    EVJ213N2
                
                                
        
            
        
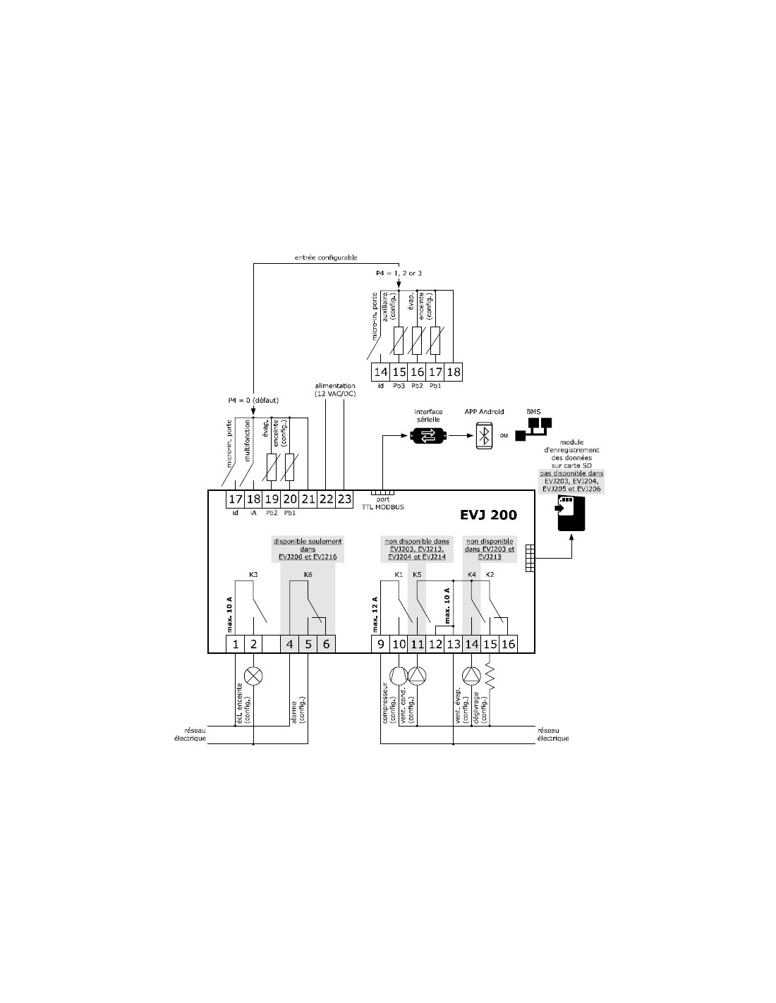
            Dispositifs de contrôle extra-larges pour armoires et vitrines réfrigérées, dans la version compacte et splittée, dotés de stratégies pour l'économie d'énergie.
Dimension:
Alimentation: 12 VAC/DC
Entrées sondes: 2
Entrées On/off: 1
Entrées configurables: 1
Relais: 3 (16A, 16A, 8A)
 NOTICE EVJ213N2
NOTICE EVJ213N2
Description
Détails du produit
- Alimentation
- 12 VAC/DC
- Entrée sonde - N°1
- 1) Sonde cellule NTC  - 
 2) Sonde cellule PTC
- Entrée sonde - N°2
- 1) Sonde de l'évaporateur NTC
 2) Sonde de l'évaporateur PTC
- Entrée numérique (on/off) - N°1
- 1) Micro-interrupteur porte
- Entrée configurable
- Sonde auxiliaire (PTC/NTC) ou micro-interrupteur porte/multifonction
- Sortie relais - N°1
- 1) Compresseur 16A
- Sortie relais - N°2
- 1) Dégivrage 8 A
- Sortie relais - N°3
- 1) Eclairage enceinte - 8 A 
 2) Eclairage enceinte - 16 A
- Port de communication
- Port série TTL Modbus
- Autres caractéristiques : N°1
- horloge intégrée
- N°2
- vibreur sonore d'alarme
- N°3
- fonction refroidissement rapide
- N°4
- fonction “économies d'énergie”
- N°5
- gestion adaptative du dégivrage
- N°6
- Fonctionnement pour un pourcentage faible/élevé d'humidité relative
- Options N°1
- Gestion depuis l’Appli avec Bluetooth BLE intégré (module EV link)
Reviews
No reviews
                     
                         
                     
                     
                