EVJ214N7 - Vitrines réfrigérées d'exposition

EVJ214N7

Dispositifs de contrôle extra-larges pour armoires et vitrines réfrigérées, dans la version compacte et splittée, dotés de stratégies pour l'économie d'énergie.

Dimension:

Alimentation: 230 VAC

Entrées sondes: 2

Entrées On/off: 1

Entrées configurables: 1

Relais: 4 (16A, 8A, 8A, 3A)

NOTICE EVJ214N7

Description

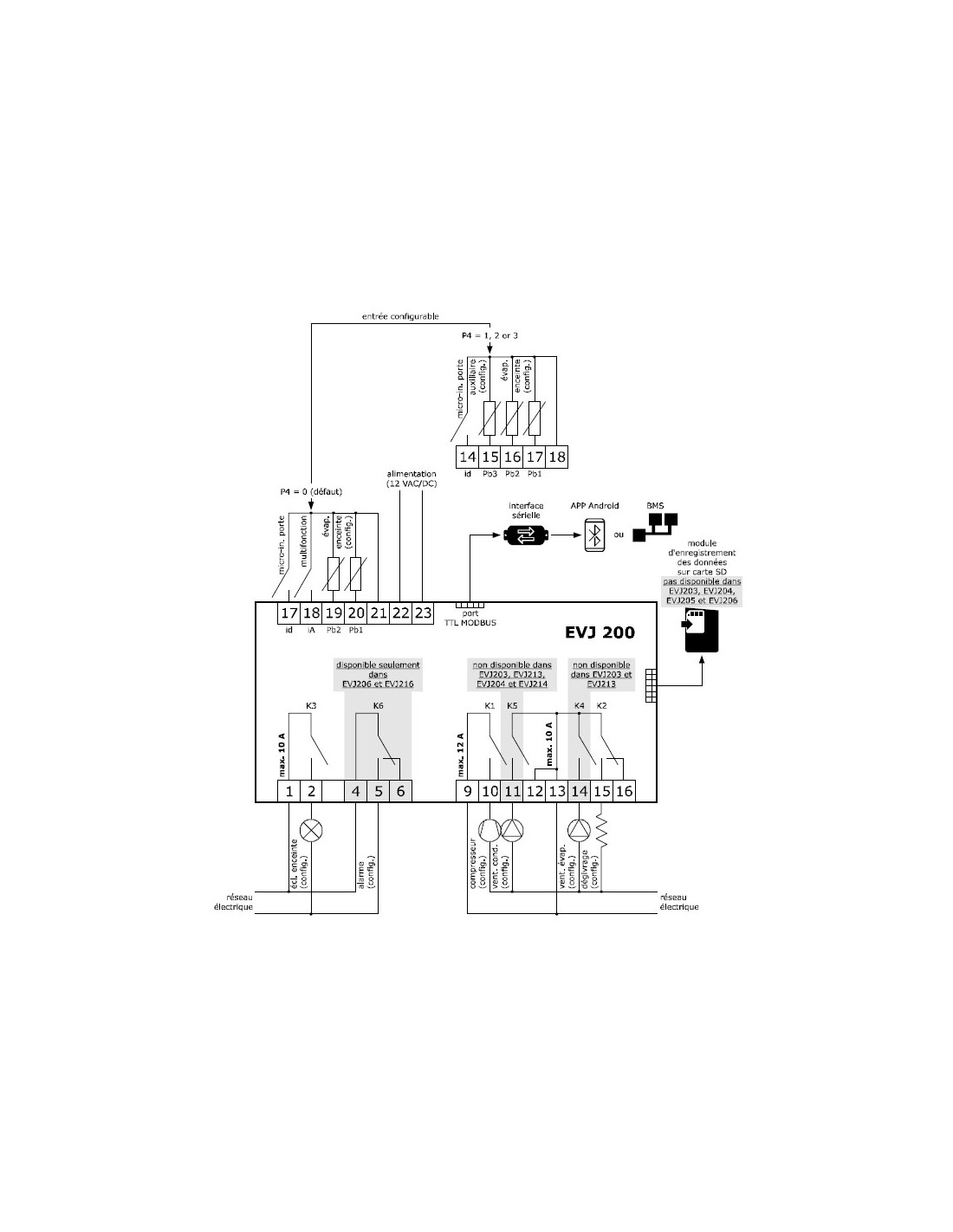
EVJ 200 (EVJumbo) est une gamme de dispositifs de contrôle pour armoires et vitrines réfrigérées avec afficheurs lumineux de grandes dimensions et aux lignes modernes, icônes de fonction et 6 touches. Les deux versions, compacte ou splittée, sont disponibles également au format « open-frame » avec clavier à membrane.
Conçue pour une installation rapide sur panneau, la famille Jumbo dispose d'un clavier tactile de type capacitif et d'un panneau frontal IP65 entièrement lisse qui en facilite le nettoyage. Les modèles « naked », quant à eux, sont personnalisables depuis la machine grâce à l'installation à l'arrière du panneau.
Dotés de 5 relais au maximum pour une gestion complète des armoires et vitrines réfrigérées, les dispositifs de contrôle abritent un micrologiciel avec des fonctions intelligentes pour l'économie d'énergie. Certains modèles, sur demande, sont fournis dans la version conforme à la norme EN 60079-15 pour les installations qui utilisent des hydrocarbures (R290).
Pour les fonctions avancées relatives à la traçabilité des données HACCP, il est possible d'ajouter en option un module d'enregistrement des données sur carte SD (EVBD05) avec la génération de fichiers au format CSV ou une interface Bluetooth BLE (EVlink) avec visualisation des données et accès à la machine depuis des dispositifs mobiles. L'Horloge et le Bluetooth sont disponibles également dans la version intégrée.
Grâce à l'APPLI EVconnect (compatible avec les dispositifs Android), les smartphones et les tablettes deviennent ainsi un outil pratique sur lequel visualiser les graphiques et les alarmes en temps réel et télécharger l'historique des données, avec la possibilité de transfert via e-mail. En saisissant un code d'accès, il sera également possible d'intervenir sur la configuration de l'unité réfrigérée, en rendant ainsi EVconnect un outil moderne et indispensable pour un service qualifié.

Détails du produit

Alimentation
230 VAC
Entrée sonde - N°1
1) Sonde cellule NTC -
2) Sonde cellule PTC
Entrée sonde - N°2
1) Sonde de l'évaporateur NTC
2) Sonde de l'évaporateur PTC
Entrée numérique (on/off) - N°1
1) Micro-interrupteur porte
Entrée configurable
Sonde auxiliaire (PTC/NTC) ou micro-interrupteur porte/multifonction
Sortie relais - N°1
1) Compresseur 16A
Sortie relais - N°2
1) Dégivrage 8 A
Sortie relais - N°3
1) Eclairage enceinte - 8 A
Sortie relais - N°4
4) Ventilateur de l'évaporateur - 3 A
Port de communication
Port série TTL Modbus
Autres caractéristiques : N°1
horloge intégrée
N°2
vibreur sonore d'alarme
N°3
fonction refroidissement rapide
N°4
fonction “économies d'énergie”
N°5
gestion adaptative du dégivrage
N°6
Fonctionnement pour un pourcentage faible/élevé d'humidité relative
Options N°1
Enregistrement des données HACCP sur carte SD au format CSV (module EVBD05)
Gestion depuis l’Appli avec Bluetooth BLE intégré (module EV link)

Documents joints

Reviews

No reviews
Product added to wishlist
Product added to compare.

Ce site utilise des cookies pour vous fournir le meilleur service possible. Si vous continuez à naviguer, vous acceptez l'utilisation de cookies.

Politique de confidentialité