CT1SA0040101 - Armoires & Chambres de fermentation

CT1SA0040101

Dispositifs de contrôle de base pour table et armoires de fermentation

Dimension: 74 x 32 

Alimentation: 230 Vca

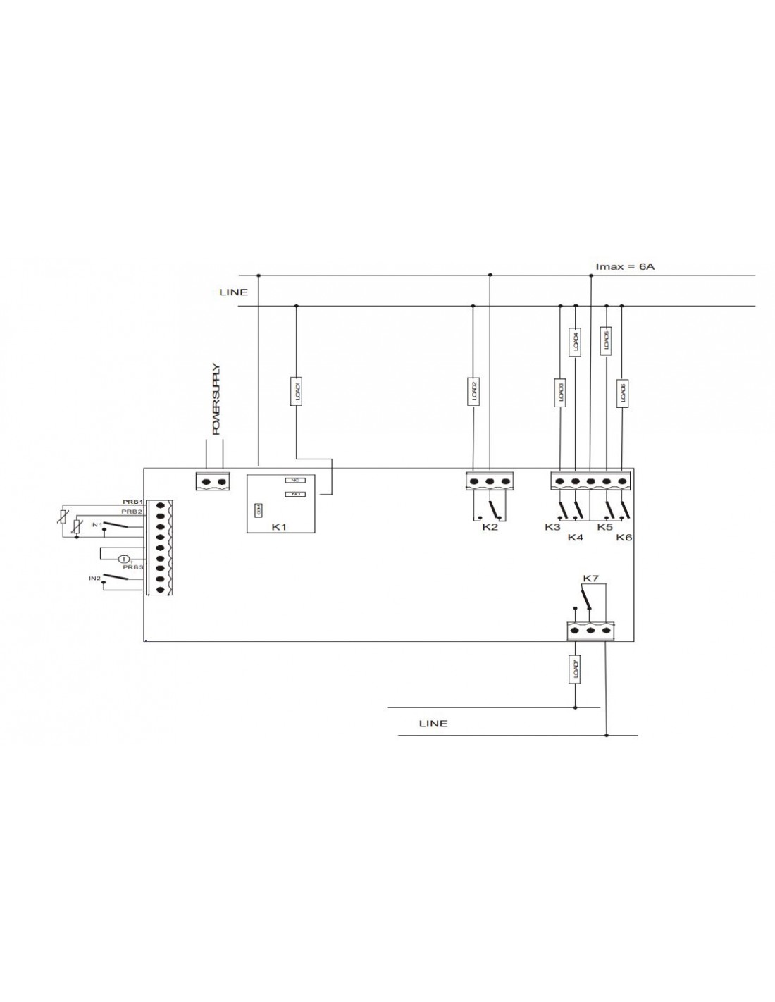
Entrées analogiques: 2

Entrées numériques (pour contact NO/NF): 2

Sorties relais: 4

NOTICE CT1SA0040101

Description

CT1SA0040101 est un dispositif de contrôle pour la gestion des armoires et des cellules de fermentation.
Il est disponible dans la version compacte avec interface utilisateur composée d'un afficheur alphanumérique LCD et de 6 touches.
Il est en mesure de gérer les cycles automatiques de fermentation (constitués par les phases de blocage, de conservation, de réveil, de levage et de ralentissement), les cycles manuels de conservation et de levage (avec gestion de la température, de l'humidité et de l'intensité de ventilation de façon indépendante pour chaque phase).
Il dispose également de la fonction "programmes" (pour mémoriser les sélections des cycles automatiques de fermentation dans un programme, dans le but de pouvoir le sélectionner et l'exécuter par la suite).
L'installation à l'arrière du panneau à l'aide de goujons prisonniers et pellicule frontale permet de positionner l'interface utilisateur au ras du panneau, pour une intégration parfaite avec le design de l'unité.

Détails du produit

Alimentation
12 VAC/DC
Entrée sonde - N°1
1) Sonde cellule NTC -
2) Sonde cellule PTC
Entrée sonde - N°2
1) Sonde de l'évaporateur NTC
Entrée sonde - N°3
Sonde d'humidité (4-20 mA)
Entrée numérique (on/off) - N°1
2) Micro-interrupteur multifonction
Entrée numérique (on/off) - N°2
Protection thermique compresseur
multi-fonction
Sortie relais - N°1
1) Compresseur 16A
2) Compresseur 30 A
Sortie relais - N°2
2) Humidificateur (configurable) - 8A
Sortie relais - N°3
4) Ventilateur de l'évaporateur - 5 A
Sortie relais - N°4
5) Résistances - 8 A
Sortie relais - N°5
Eclairage ambiant - 5 A
Sortie relais - N°6
Dégivrage 8 A
Sortie relais - N°7
Générateur de buée - 5 A
Port de communication
RS-485 Modbus
Autres caractéristiques : N°1
horloge intégrée
N°2
vibreur sonore d'alarme
N°3
Gestion des cycles automatiques de fermentation, des cycles manuels de conservation et de levage
N°4
Gestion de l'intensité de réduction
N°6
Défaut inversion sens de marche du ventilateur - 8 A

Documents joints

Reviews

No reviews
Product added to wishlist
Product added to compare.

Ce site utilise des cookies pour vous fournir le meilleur service possible. Si vous continuez à naviguer, vous acceptez l'utilisation de cookies.

Politique de confidentialité